
Plans & métrés BTP
livrés en 24 – 72h
Des plans 2D / 3D et quantitatifs clairs pour chiffrer, vendre et avancer plus vite.
Artisans, entreprises, investisseurs, particuliers ou professionnels de l’immobilier.
Service premium et humain - Sans IA - 100 % digital.
Des résultats concrets pour vos projets
Déléguez la technique, concentrez-vous sur le business


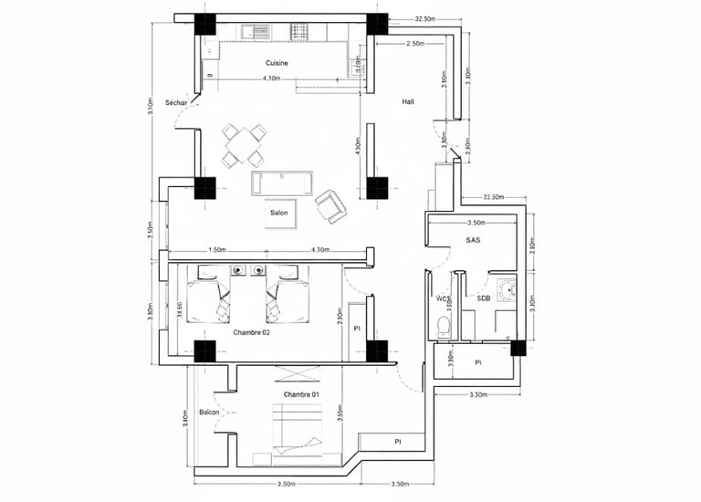
Plans 2D Techniques
Obtenez des plans de niveaux, coupes et façades parfaitement cotés, prêts pour vos dossiers de permis ou d’exécution.


Plans 3D & Visuels
Faites se projeter vos clients instantanément avec des visualisations 3D réalistes. Parfait pour valider le design et accélérer la signature.




Aménagement Intérieur
Optimisez chaque m² avec des propositions d’agencement intelligentes pour valoriser un bien avant vente ou location.
Métrés & Quantitatifs
Recevez des listes précises de matériaux (surfaces, volumes, linéaires) pour éviter surcoûts et pénuries.
Prêt à accélérer vos chantiers ?
Rejoignez les artisans, investisseurs et particuliers qui ont choisi l'efficacité.
Qualité, prix et délais imbattables pour vos projets !
Plans & métrés livrés rapidement pour particuliers, artisans, investisseurs et professionnels du BTP
© 2026 PlanyQuant. Tous droits réservés


France
Services
Ressources
Légal
